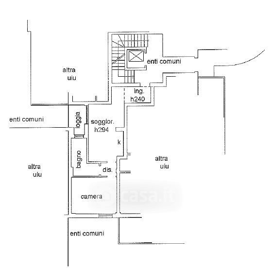
Appartamento in vendita Via Piave , Muggiò
Salva
Casa.it
1/34
  • Street View
  • Map