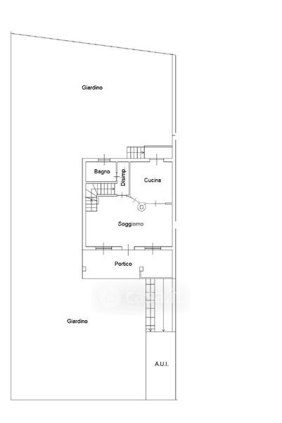
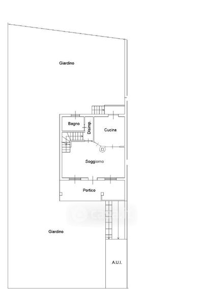
Appartamento in vendita Via Tobagi 12, Mulazzano
Salva
Casa.it
1/50
  • Street View
  • Map