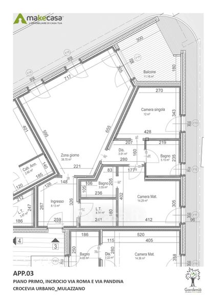
Appartamento in vendita Via Roma 34, Mulazzano
Salva
Casa.it
1/13
  • Street View
  • Map