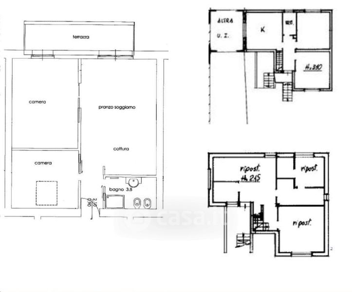
Appartamento in vendita Via San Zeno 14, Odolo
Salva
Casa.it
1/17
  • Street View
  • Map