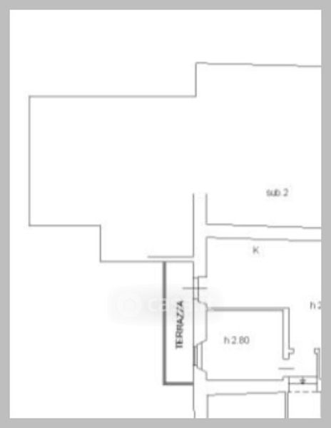
Appartamento in vendita Via Torino , Oggiona con Santo Stefano
Salva
Casa.it
1/37
  • Street View
  • Map