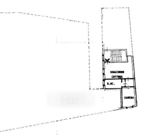
Appartamento in vendita Via Camillo Benso Conte di Cavour , Oggiono
Salva
Casa.it
1/18
  • Street View
  • Map