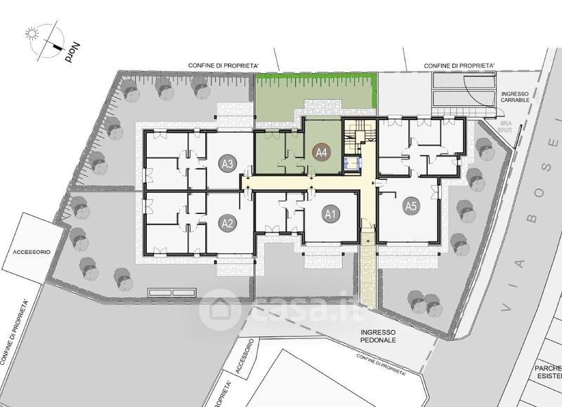
Appartamento in vendita Via Sandro e Piero Boselli , Olgiate Comasco
Salva
Casa.it
1/20
  • Street View
  • Map