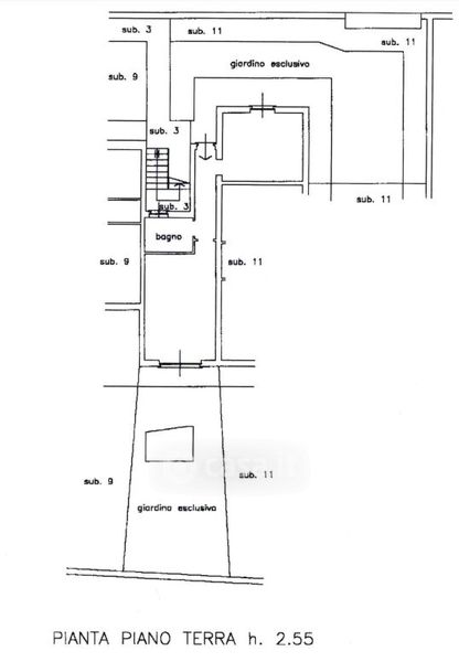
Appartamento in vendita Via Premedà 172, Onore
Salva
Casa.it
1/36
  • Street View
  • Map