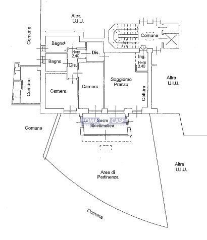
Appartamento in vendita Via XXV Aprile 9, Osnago
Salva
Casa.it
1/26
  • Street View
  • Map