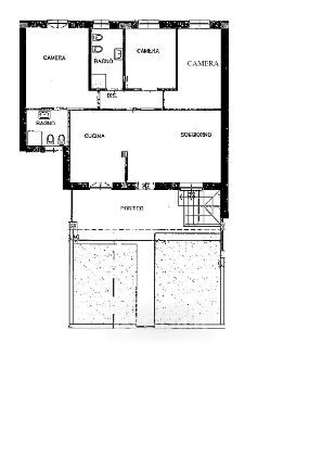
Appartamento in vendita Via Seriola , Ospitaletto
Salva
Casa.it
1/9
  • Street View
  • Map