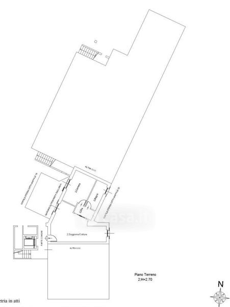
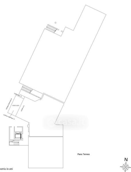
Appartamento in vendita Via Patrioti 121, Ossona
Salva
Casa.it
1/21
  • Street View
  • Map