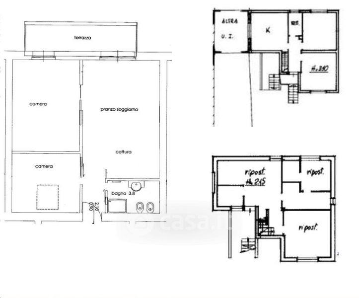
Appartamento in vendita Via Giuseppe Mazzini 1, Padenghe sul Garda
Salva
Casa.it
1/31
  • Street View
  • Map