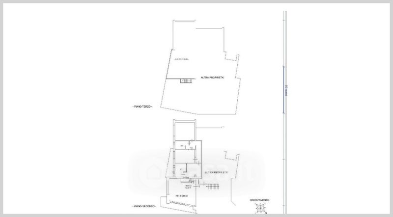
Appartamento in vendita Via Cesare Battisti , Paderno Dugnano
Salva
Casa.it
1/37
  • Street View
  • Map