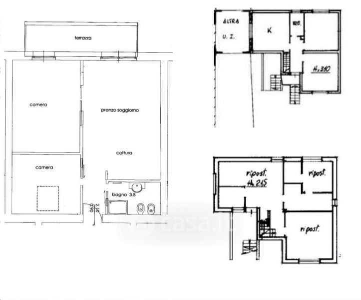
Appartamento in vendita Via Taranto 18, Palazzolo sull'Oglio
Salva
Casa.it
1/29
  • Street View
  • Map