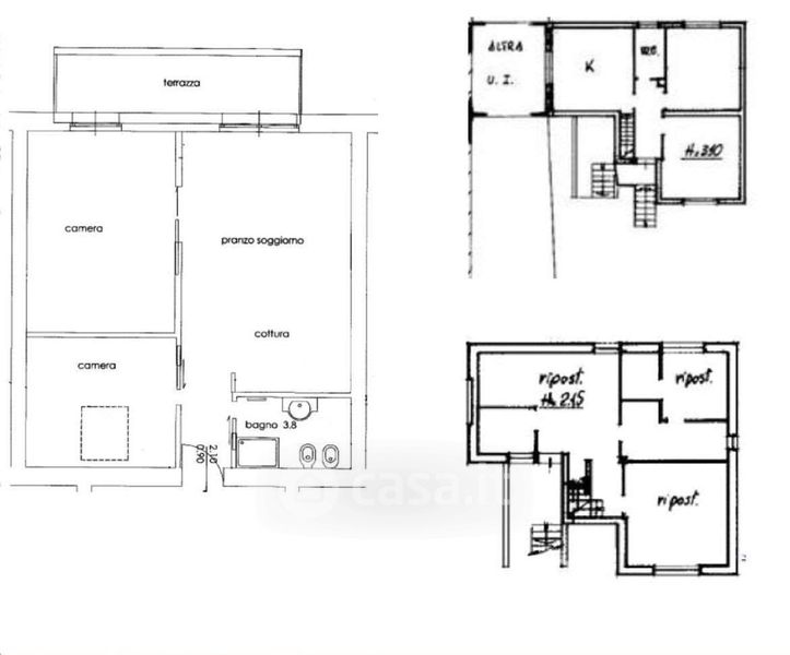
Appartamento in vendita Via Bari 16, Palazzolo sull'Oglio
Salva
Casa.it
1/26
  • Street View
  • Map