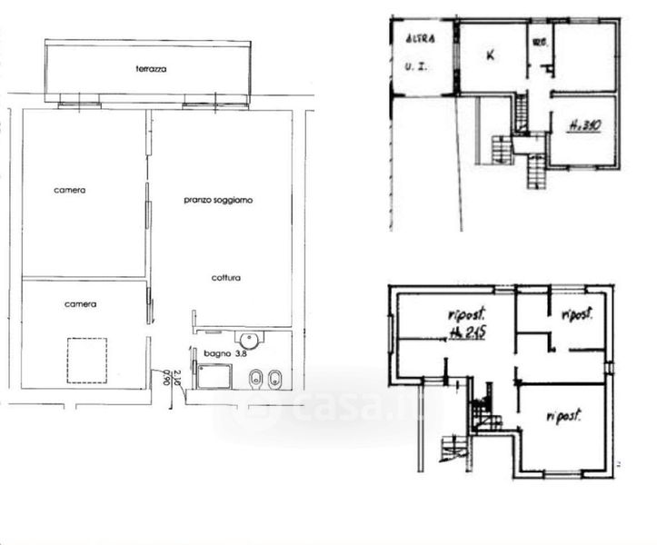
Appartamento in vendita Via Camillo Benso Conte di Cavour 21, Pandino
Salva
Casa.it
1/17
  • Street View
  • Map