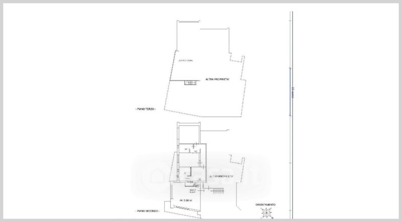
Appartamento in vendita Vicolo Castello , Paullo
Salva
Casa.it
1/37
  • Street View
  • Map