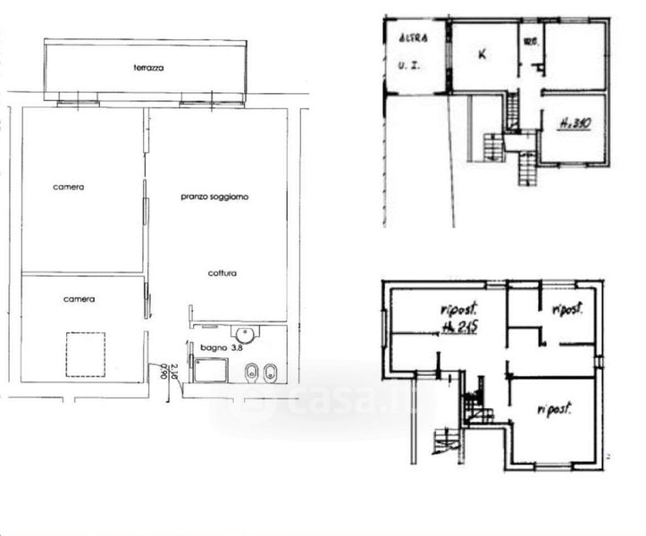
Appartamento in vendita Via Alessandrini 8, Paullo
Salva
Casa.it
1/13
  • Street View
  • Map