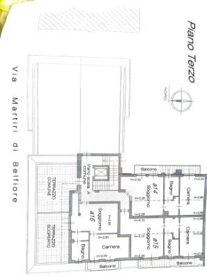
Appartamento in vendita Via Martiri di Belfiore 2, Paullo
Salva
Casa.it
1/32
  • Street View
  • Map