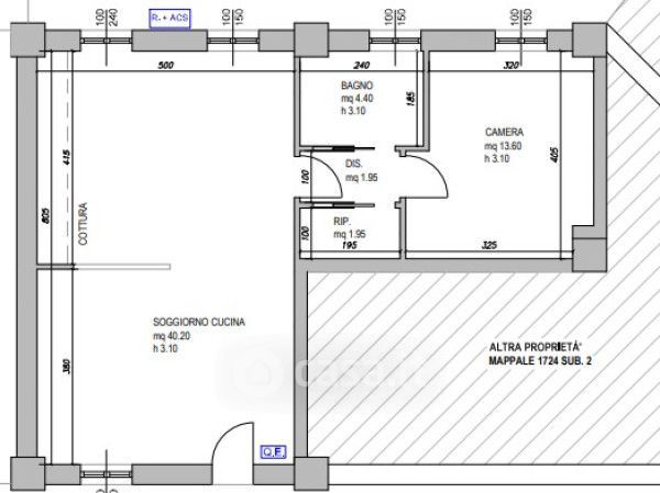
Appartamento in vendita Via Case Nuove Dè Canonici , Pavia
Salva
Casa.it
1/18
  • Street View
  • Map