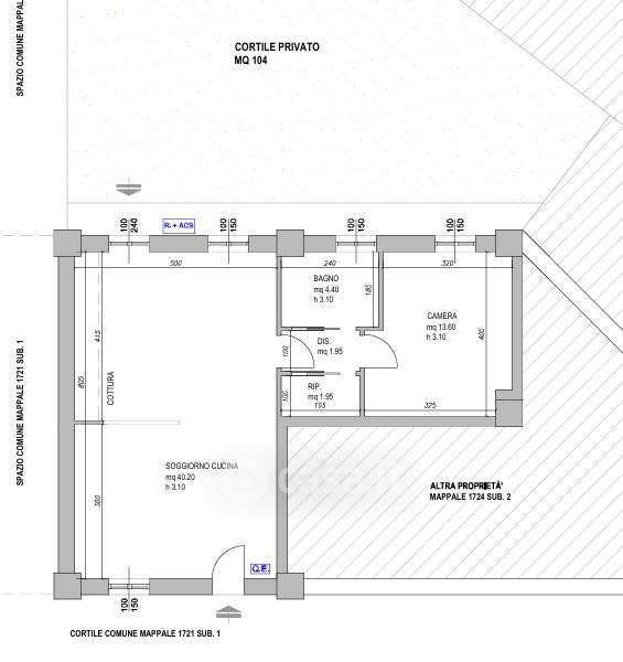
Appartamento in vendita Via Case Nuove Dè Canonici 501, Pavia
Salva
Casa.it
1/27
  • Street View
  • Map