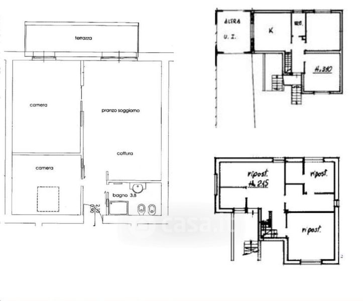
Appartamento in vendita Via Papa Giovanni XXIII 15, Pavone del Mella
Salva
Casa.it
1/31
  • Street View
  • Map