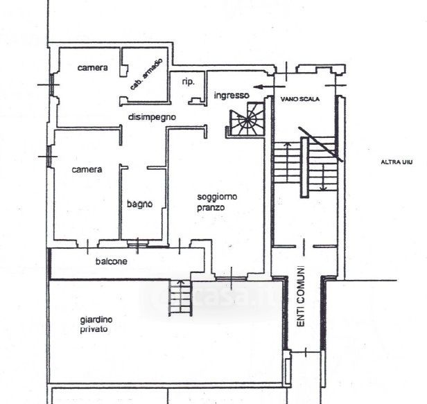
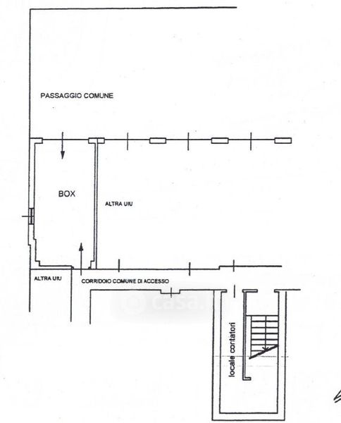
Appartamento in vendita Via Figino 8, Pero
Salva
Casa.it
1/46
  • Street View
  • Map