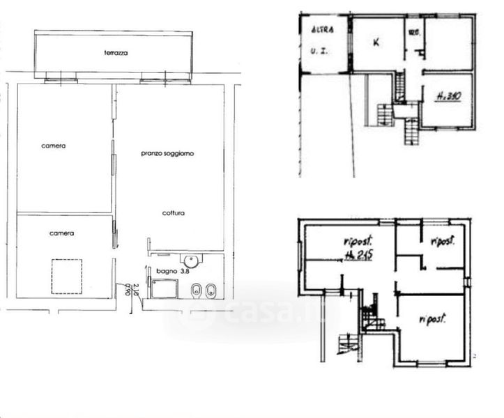
Appartamento in vendita Via Giuseppe Mazzini 78, Pescarolo ed Uniti
Salva
Casa.it
1/10
  • Street View
  • Map