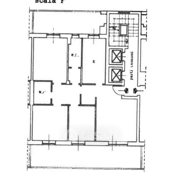
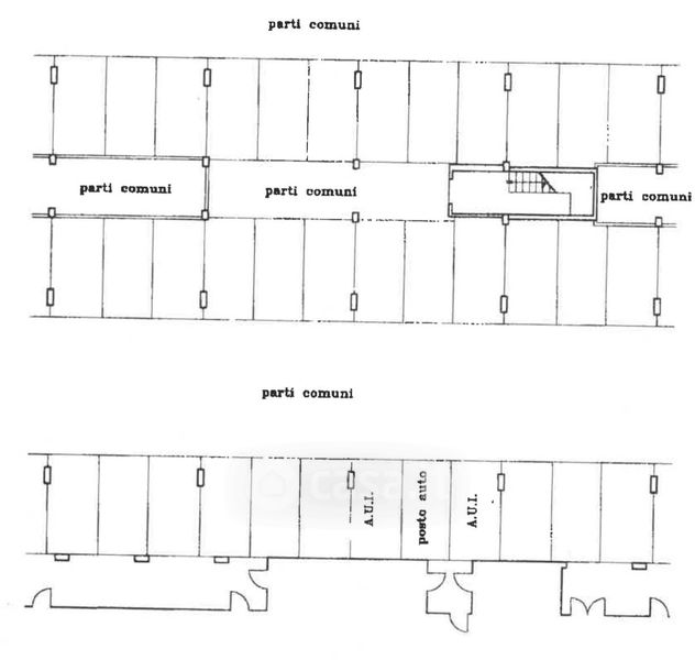
Appartamento in vendita Via dei Pini 5, Pieve Emanuele
Salva
Casa.it
1/24
  • Street View
  • Map