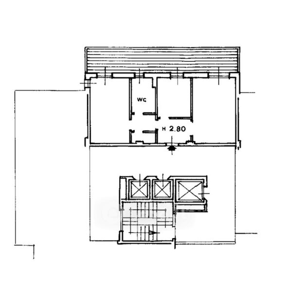
Appartamento in vendita Via dei Pini 6, Pieve Emanuele
Salva
Casa.it
1/20
  • Street View
  • Map