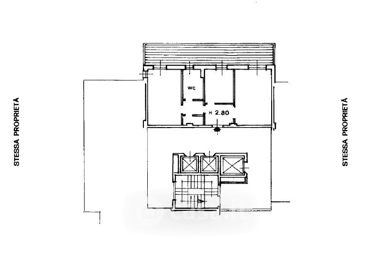
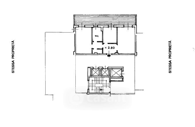
Appartamento in vendita Via Acacie , Pieve Emanuele
Salva
Casa.it
1/38
  • Street View
  • Map