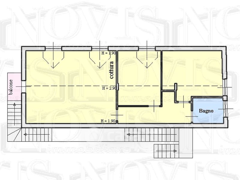
Appartamento in vendita Via alla Stazione 9, Pioltello
Salva
Casa.it
1/22
  • Street View
  • Map