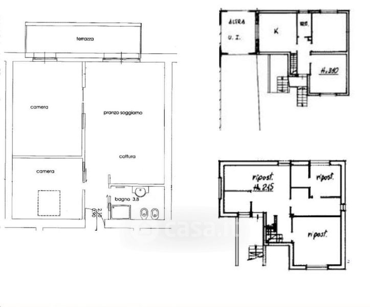
Appartamento in vendita Via Ronco 24, Polpenazze del Garda
Salva
Casa.it
1/17
  • Street View
  • Map