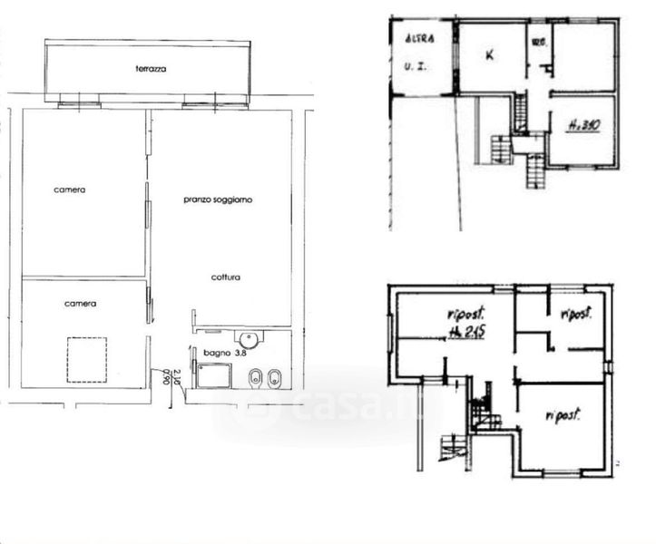
Appartamento in vendita Via Ettore Calvelli 56, Ponte di Legno
Salva
Casa.it
1/32
  • Street View
  • Map