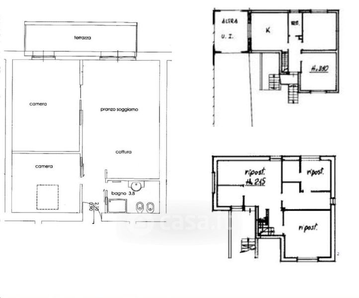
Appartamento in vendita Via Ettore Calvelli 54, Ponte di Legno
Salva
Casa.it
1/33
  • Street View
  • Map