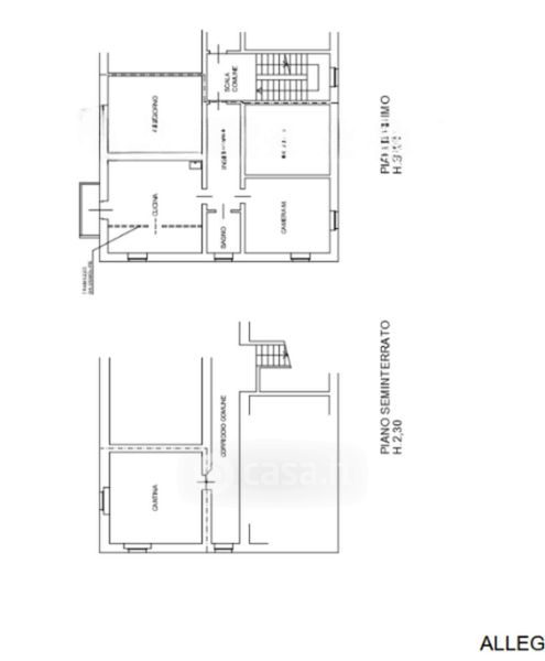
Appartamento in vendita Via Adige 4, Ponte San Pietro
Salva
Casa.it
1/34
  • Street View
  • Map