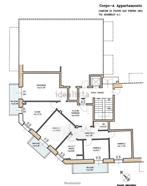
Appartamento in vendita Via Adamello , Ponte San Pietro
Salva
Casa.it
1/24
  • Street View
  • Map