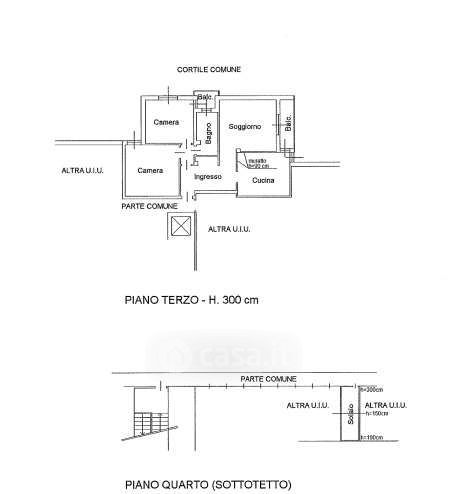
Appartamento in vendita Via Mario Belli 14, Pozzuolo Martesana
Salva
Casa.it
1/14
  • Street View
  • Map