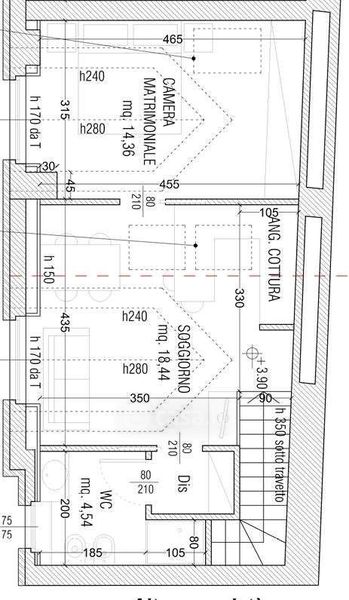
Appartamento in vendita Via Martiri della Liberazione 69, Pozzuolo Martesana
Salva
Casa.it
1/5
  • Street View
  • Map