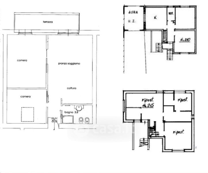
Appartamento in vendita Via L. Ciocca 36, Quinzano d'Oglio
Salva
Casa.it
1/17
  • Street View
  • Map