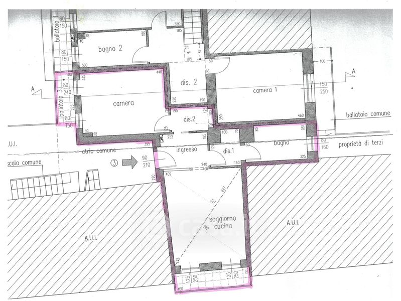
Appartamento in vendita Via A. Da Giussano 112, Rescaldina
Salva
Casa.it
1/10
  • Street View
  • Map