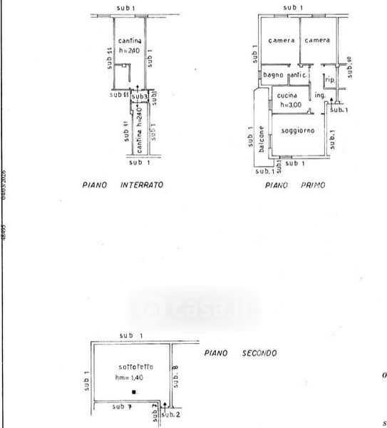
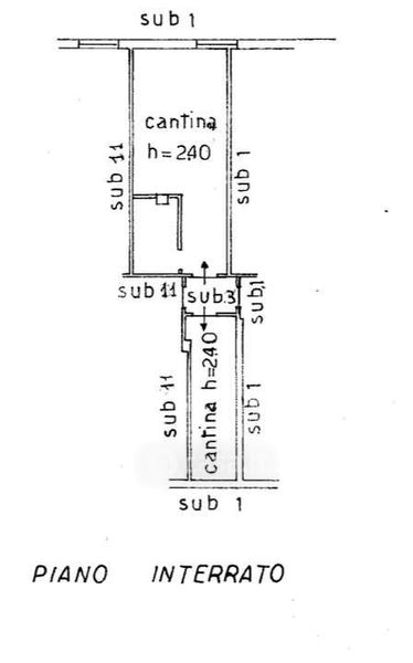
Appartamento in vendita Via Felice Cavallotti 16, Rho
Salva
Casa.it
1/25
  • Street View
  • Map