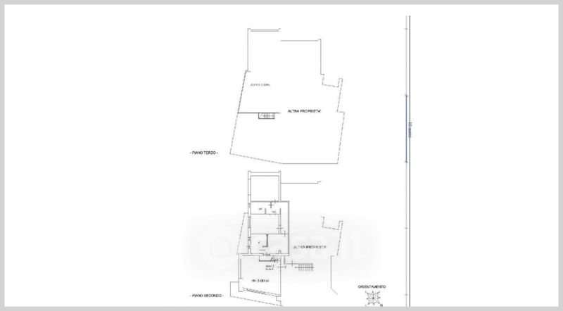
Appartamento in vendita Vicolo del Mughetto , Robbiate
Salva
Casa.it
1/37
  • Street View
  • Map