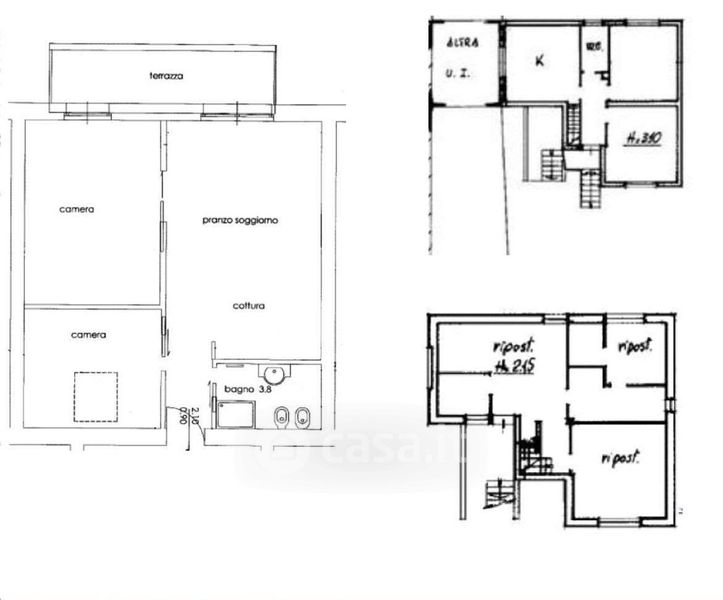
Appartamento in vendita Vicolo Algisio da Romano 2, Romano di Lombardia
Salva
Casa.it
1/17
  • Street View
  • Map