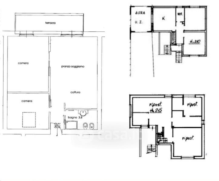
Appartamento in vendita Via della Malpensata 14, Romano di Lombardia
Salva
Casa.it
1/17
  • Street View
  • Map