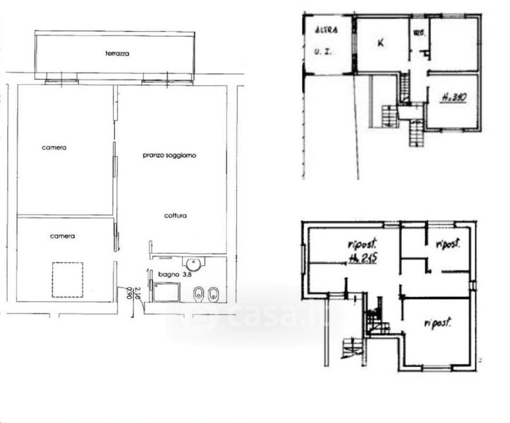
Appartamento in vendita Via Carso 58, Romano di Lombardia
Salva
Casa.it
1/13
  • Street View
  • Map