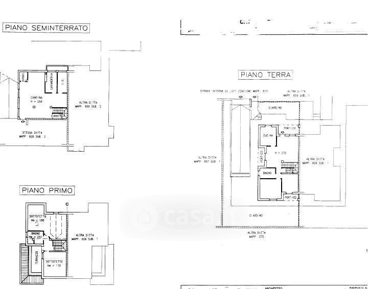
Appartamento in vendita Via G.Verdi 24, Roncello
Salva
Casa.it
1/17
  • Street View
  • Map