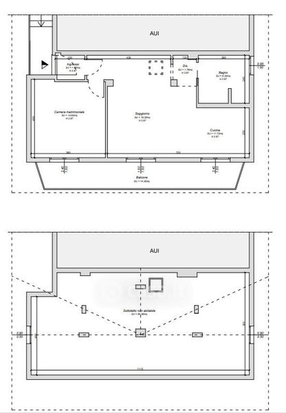
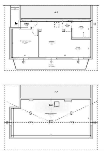
Appartamento in vendita Via Giacomo Quarenghi , Rota d'Imagna
Salva
Casa.it
1/15
  • Street View
  • Map