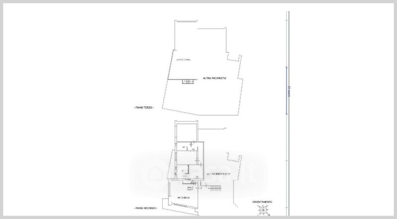
Appartamento in vendita Via Roma , Samarate
Salva
Casa.it
1/36
  • Street View
  • Map