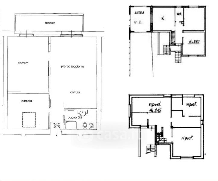
Appartamento in vendita Via Dalcerri Tosi 711, San Colombano al Lambro
Salva
Contatta l'inserzionista
Casa.it