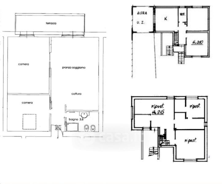
Appartamento in vendita Via Dalcerri Tosi 711, San Colombano al Lambro
Salva
Casa.it
1/17
  • Street View
  • Map