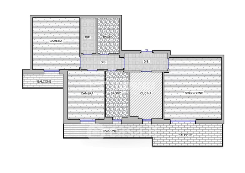
Appartamento in vendita Via Angelo Moro , San Donato Milanese
Salva
Casa.it
1/26
  • Street View
  • Map