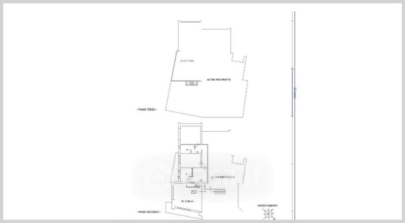
Appartamento in vendita Strada Senza Nome , San Donato Milanese
Salva
Casa.it
1/32
  • Street View
  • Map