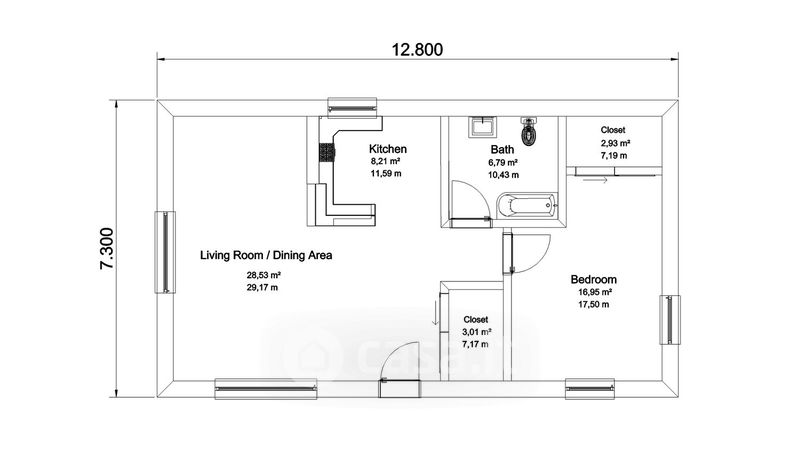
Appartamento in vendita Via Enrico Mattei , San Donato Milanese
Salva
Casa.it
1/39
  • Street View
  • Map